fbpx

Wykonujemy komputerową wizualizację przestrzenną aranżowanych pomieszczeń. Projekty aranżacji wnętrz wykonujemy przy pomocy licencjonowanego programu pCon.planner, dzięki czemu możemy przedstawić klientowi nie tylko koncepcję ustawienia, ale również podstawić bryły konkretnych mebli biurowych oraz krzeseł biurowych z naszej oferty.

Dzięki profesjonalnemu podejściu do projektowania każda aranżacja biura może być wyjątkowa i niepowtarzalna. Zapraszamy do kontaktu z naszym biurem.

 

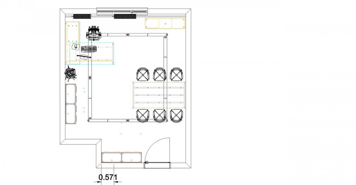
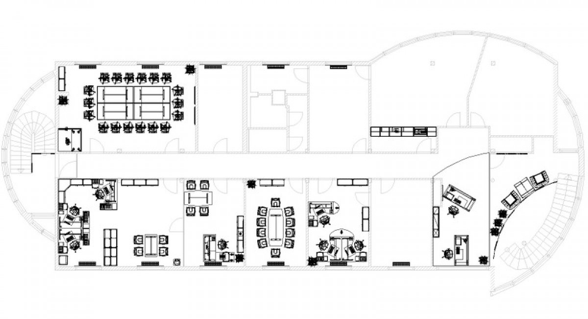
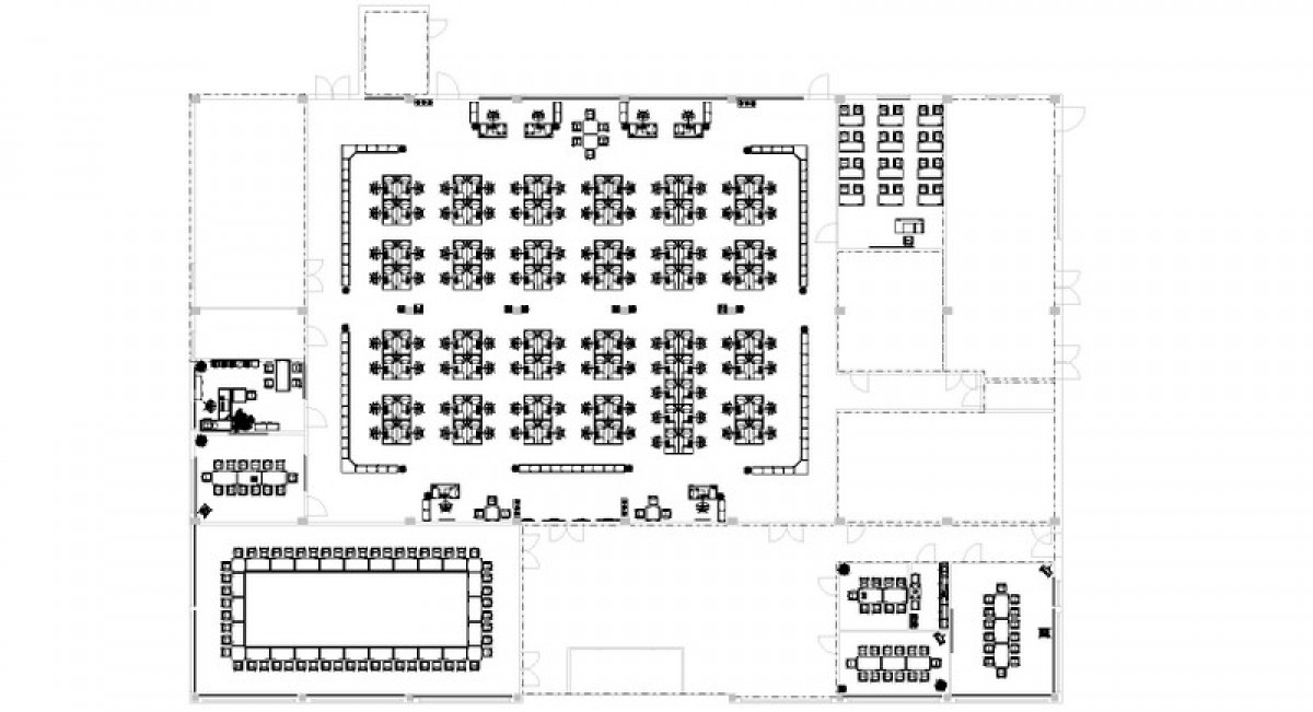
Przykładowe projekty aranżacji wnętrz - pCon.planner

 

Aranżacja Biura - Projekt 1


Aranżacja Biura - Projekt 2

Aranżacja Biura - Projekt 3


Aranżacja Biura - Projekt 4


Aranżacja Biura - Projekt 5

Aranżacja Biura - Projekt 6

Aranżacja Biura - Projekt 7

Aranżacja Biura - Projekt 8

 Aranżacja Biura - Projekt 9


Aranżacja Biura - Projekt 10

 

Projekty wnętrz biurowych wykonane w programie ARCON 13.0

 

Aranżacja Biura - Projekt 11

Projekt aranżacji wyposażenia wnętrz został wykonany w oparciu o pomiar wykonany w trakcie trwania budowy obiektu. Dzięki temu, poza dostawą mebli i krzeseł biurowych mogliśmy również doradzić klientowi dobór kolorystyki ścian oraz wykładzin i kafli. Wyposażyliśmy w meble biurowe zarówno pomieszczenia pracownicze, jak i gabinety oraz recepcję. Meble biurowe gabinetowe z systemu Aero nadały pomieszczeniom nowoczesnego charakteru, dodały ich użytkownikom prestiżu. Całości wizerunku dopełniły krzesła biurowe String – wygodne i ergonomiczne krzesła polecane do wielogodzinnej pracy biurowej.

 

 

 
Aranżacja Biura - Projekt 12
 
Aranżacja wnętrz typu open-space jest zawsze wyjątkowym wyzwaniem. Kierujemy się przede wszystkim zasadami ergonomii, aby maksymalnie zwiększyć komfort pracy. W przypadku tego projektu dobieraliśmy meble biurowe w taki sposób, aby uzyskać jak największą powierzchnię biurową przypadającą na jednego pracownika, gwarantując mu jak największą swobodę i spokój, jaki w warunkach wnętrz typu open-space można uzyskać, a także aby zapewnić użytkownikom mebli biurowych możliwość przechowywania podręcznych dokumentów w pobliżu stanowiska pracy. Najwyższej jakości meble biurowe zostały uzupełnione o wygodne i ergonomiczne krzesła biurowe, dzięki czemu całość pomieszczenia stała się przyjazna pracownikom i uporządkowana.
 
 

 
 
Aranżacja Biura - Projekt 13
 
Współpraca nawiązana jeszcze na etapie prac budowlanych pozwoliła nam wykonać kompleksową aranżację wnętrz biurowych w tym budynku – wraz z klientem ustaliliśmy kolorystykę ścian, wykończenie podłóg, dobraliśmy meble biurowe, krzesła biurowe oraz dodatki. Dostarczyliśmy mebli biurowych zarówno do gabinetów, pomieszczeń pracowniczych, recepcji jak i sal konferencyjnych, uzupełniając je o ergonomiczne krzesła.
 
 

 
Aranżacja Biura - Projekt 14
 
Przy okazji aranżacji wnętrz w tym budynku, głównym wymogiem klienta było wykorzystanie przestrzeni biurowej w taki sposób, aby przy stosunkowo niewielkiej powierzchni wygospodarować miejsce dla jak największej ilości stanowisk. Idealnym rozwiązaniem do takiego biura było zastosowanie mebli biurowych z systemu Ergonomic Master.
 
 

 

Zapisz

Zapisz

Zapisz

Zapisz

Zapisz

Zapisz

Zapisz

Zapisz

Zapisz

Zapisz

Zapisz

Zapisz

Zapisz

Zapisz

Zapisz

Zapisz

Zapisz

Zapisz

Zapisz

Zapisz

Zapisz

Zapisz

Zapisz

Zapisz

 
Nasz serwis wykorzystuje pliki cookies w celu realizacji usług zgodnie z polityką prywatności. Możesz zmienić ustawienia dotyczące plików cookie w menu przeglądarki internetowej. Korzystanie z naszego serwisu bez zmiany ustawień dotyczących plików cookies, oznacza że będą one zapisane w pamięci urządzenia końcowego.